当前位置: 首页> 轴承型号查询> IKO CFKR47轴承

IKO CFKR47轴承参数/图纸/资料

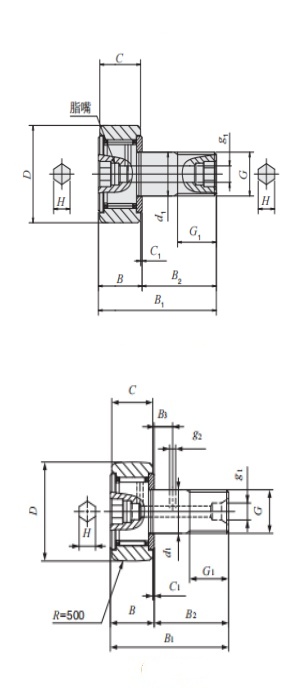
CFKR47IKO轴承现货供应,库存丰富。滚轮轴承CFKR47内径20mm,外径47mm,厚度24mm,属于原装进口IKO轴承凸轮从动轴承系列。欢迎来电咨询CFKR47轴承基本参数,技术规格、相关型号等信息。同时我们提供轴承润滑脂,密封件,安装保养工具等售前售后服务!

CFKR47轴承用途:离心铸机、回转炉导轮、立磨、石油和天然气、挖掘机/ 回转机构传动装置、牵引电动机、精纺机/ 锭子、矿山机械、带轮、物料运输、铁路货车、橡胶和塑料压延机等领域。

CFKR47轴承基本参数/技术规格

品牌
IKO
型号
CFKR47
类型
滚轮轴承
系列
凸轮从动轴承
d
20mm
内径
D
47mm
外径
d
24mm
厚度
Cr
207KN
基本额定动载荷, 径向
Cor
346KN
基本额定静载荷,径向
Cur
-
疲劳极限载荷, 径向
nϑr
r/min
参考转速
nG
r/min
极限转速
≈m
0.378kg
重量
友情链接:
COPYRIGHT © 2021 INA-BEARING.CN
公司地址:无锡市无锡市崇安区兴源北路818号 公司电话:0510-82325353