当前位置: 首页> 轴承型号查询> IKO CFKR40轴承

IKO CFKR40轴承参数/图纸/资料

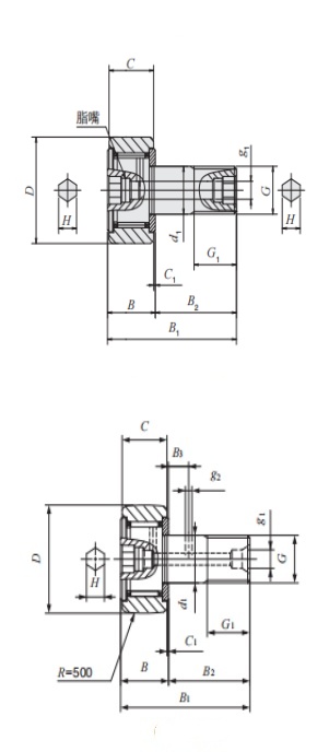
CFKR40IKO轴承现货供应,库存丰富。滚轮轴承CFKR40内径18mm,外径40mm,厚度20mm,属于原装进口IKO轴承凸轮从动轴承系列。欢迎来电咨询CFKR40轴承基本参数,技术规格、相关型号等信息。同时我们提供轴承润滑脂,密封件,安装保养工具等售前售后服务!

CFKR40轴承用途:输送设备、汽车行业、办公设备、透平机械、航空航天、橡塑机械、标准电动机、机动车辆、工业马达、排气风扇、办公设备、起重机滑轮等领域。

CFKR40轴承基本参数/技术规格

品牌
IKO
型号
CFKR40
类型
滚轮轴承
系列
凸轮从动轴承
d
18mm
内径
D
40mm
外径
d
20mm
厚度
Cr
148KN
基本额定动载荷, 径向
Cor
252KN
基本额定静载荷,径向
Cur
-
疲劳极限载荷, 径向
nϑr
r/min
参考转速
nG
r/min
极限转速
≈m
0.250kg
重量
友情链接:
COPYRIGHT © 2021 INA-BEARING.CN
公司地址:无锡市无锡市崇安区兴源北路818号 公司电话:0510-82325353