当前位置: 首页> 轴承型号查询> IKO CFKR30轴承

IKO CFKR30轴承参数/图纸/资料

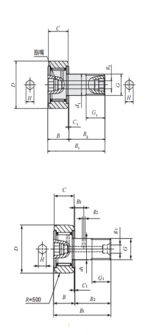
CFKR30IKO轴承现货供应,库存丰富。滚轮轴承CFKR30内径12mm,外径30mm,厚度14mm,属于原装进口IKO轴承凸轮从动轴承系列。欢迎来电咨询CFKR30轴承基本参数,技术规格、相关型号等信息。同时我们提供轴承润滑脂,密封件,安装保养工具等售前售后服务!

CFKR30轴承用途:钻床主轴、橡胶和塑料压延机、通用齿轮箱、农业机械、太阳能、石油和天然气、测试台与设备、电梯扶梯、压缩机、风能 、铁路、农业机械等领域。

CFKR30轴承基本参数/技术规格

品牌
IKO
型号
CFKR30
类型
滚轮轴承
系列
凸轮从动轴承
d
12mm
内径
D
30mm
外径
d
14mm
厚度
Cr
7.910KN
基本额定动载荷, 径向
Cor
9.790KN
基本额定静载荷,径向
Cur
-
疲劳极限载荷, 径向
nϑr
r/min
参考转速
nG
r/min
极限转速
≈m
0.094kg
重量
友情链接:
COPYRIGHT © 2021 INA-BEARING.CN
公司地址:无锡市无锡市崇安区兴源北路818号 公司电话:0510-82325353